VENTA HOTEL RURAL EN CONSTRUCCION EN LA MAYA


La Maya La Maya España

Tipo
Venta
Habitaciones
Baños
Superficie
702 m² Totales

Sobre esta propiedad

VENTA DE HOTEL RURAL EN CONSTRUCCION EN LA MAYA

Características:

  • Venta de edificio a punto de ser finalizado como hotel rural con vivienda lista para vivir ideal para emprender un nuevo negocio y disponer a la vez de un sitio donde gestionarlo de primera mano.
  • Situado en un punto muy céntrico de La Maya muy cercano al embalse de Santa Teresa en el cual se practican muchos deportes acuáticos en la playa que tiene e incluso concursos de pesca deportiva que atraen mucho turismo en verano y también en invierno por su zona micológica y de caza cinegética y deportiva.
  • Un edificio perfecto para inversión, con instalación eléctrica, fontanería, y todo lo necesario para poner a funcionar un negocio de rentabilidad asegurada.
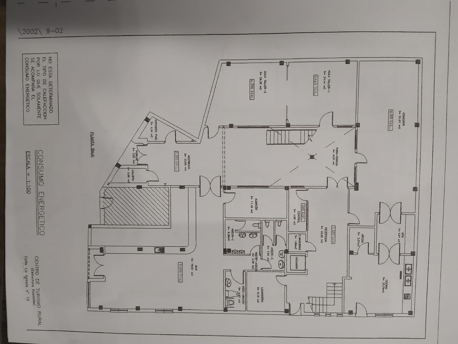
  • Cuenta con un amplio comedor , cocina, ofis , Bar con una buena barra, aseos, lavandería, almacén , dos salas complementarias al comedor o para otros usos, cuarto de calderas, vestíbulos y sala de maquinas.
  • Estaba destinado como proyecto de Hotel rural de escapada con un apartado exclusivo para para el cliente con jardín interior de invierno y amplias habitaciones forradas de pizarra y planta superior con salida a una terraza, de todas maneras se puede destinar a cualquier otro tipo de negocio.
  • Superficie de 702 m² totales , siendo  394 m² de la planta baja y 308 m² de la primera planta.
PRECIO DE VENTA:  198.000€

Detalles

Tipo: Venta

Precio: 198,000

Superficie: 702 m² Totales

Caraterísticas

Propiedades similares

Ir a Arriba